Hală 1.100 mp –Zonă premium, Baia Mare

  • 1.550.000€
Baia Mare

General

ID Proprietate: P2759
  • Spații Industriale
  • Tip proprietate
  • 1100.00
  • Suprafaţă

Descriere

Oportunitate excelentă pentru investiție sau dezvoltarea unei afaceri! Se oferă spre vânzare o hală modernă situată în zona Value Centre Baia Mare, una dintre cele mai dinamice zone comerciale din Baia Mare.

Caracteristici principale

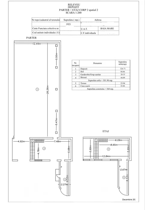
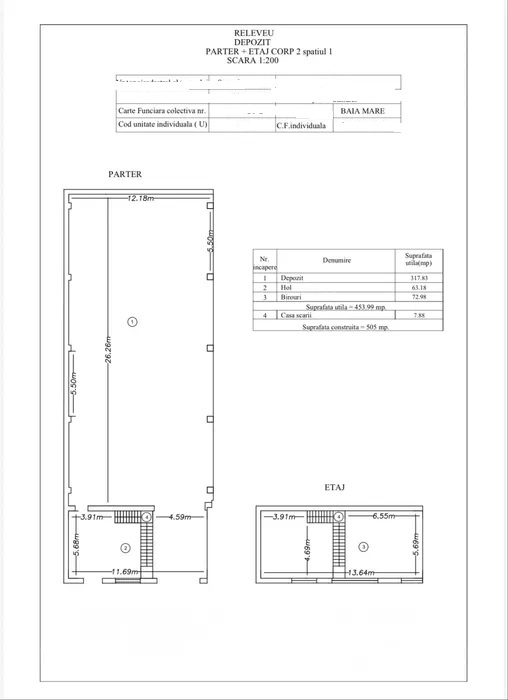
Suprafață totală hală: 1.100 mp

Compartimentare: două spații egale (~550 mp fiecare)

Posibilitate de vânzare integrală sau separată

Suprafață teren: aprox. 1.600 mp

Construcție solidă din beton

Înălțime interioară: 8 m

Etaj frontal cu birouri amenajate

Izolație groasă (40 cm) pentru eficiență energetică

Geamuri termopan

Șape elicopterizate, rezistente la trafic intens

Aer condiționat

Sistem de alarmă și supraveghere video

Hidranți interiori și exteriori

Ieșiri de incendiu conforme

Platformă betonată în fața halei

Avantaje

Zonă cu vad comercial excelent

Acces facil pentru aprovizionare și distribuție

Ideală pentru depozitare, producție, showroom, logistică sau investiție

Posibilitatea de a funcționa două afaceri separate sau de închiriere parțială

Proprietatea reprezintă o alegere foarte bună atât pentru dezvoltarea propriei afaceri, cât și pentru investiție, datorită amplasării strategice și construcției solide.

📞 Pentru detalii suplimentare și programarea unei vizionări, vă rog să ne contactați.

Adresa

  • Localitate Baia Mare

Caracteristici

Calculator ipotecar

Lunar
  • Principal și dobândă
  • Asigurare
%

Listări similare

Compară selecția

Compară
Roland Băeș
  • Roland Băeș