Vanzare-Teren intravilan, 3 parcele a cate 6,5 ari cu proiect si autorizatie de constructie (7009)

  • 85.000€
Baia Sprie

General

ID Proprietate: P1203
  • Terenuri
  • Tip proprietate
  • 0.00
  • Teren

Descriere

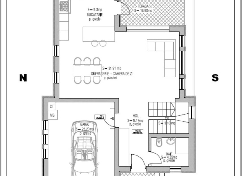
In Baia Sprie pe strada Nucului, propunem spre vanzare 3 parcele de teren intravilan fiecare a cate 6,5 ari, cu drum privat, cu proiect si autorizatie de constructie.
Utilitatile precum canalizare, gaz, curent si apa se afla la limita de proprietate.
Pretul este pentru intreaga suprafata a terenului.
Exista posibilitatea de a se achizitiona si doar o parcela pretul fiind negociabil in functie de asta.

Adresa

  • Localitate Baia Sprie

Calculator ipotecar

Lunar
  • Principal și dobândă
  • Asigurare
%

Listări similare

Compară selecția

Compară
Roland Băeș
  • Roland Băeș